gdd观筑丨中国(心海)网络直播基地
2026-02-02
邱银屏
6







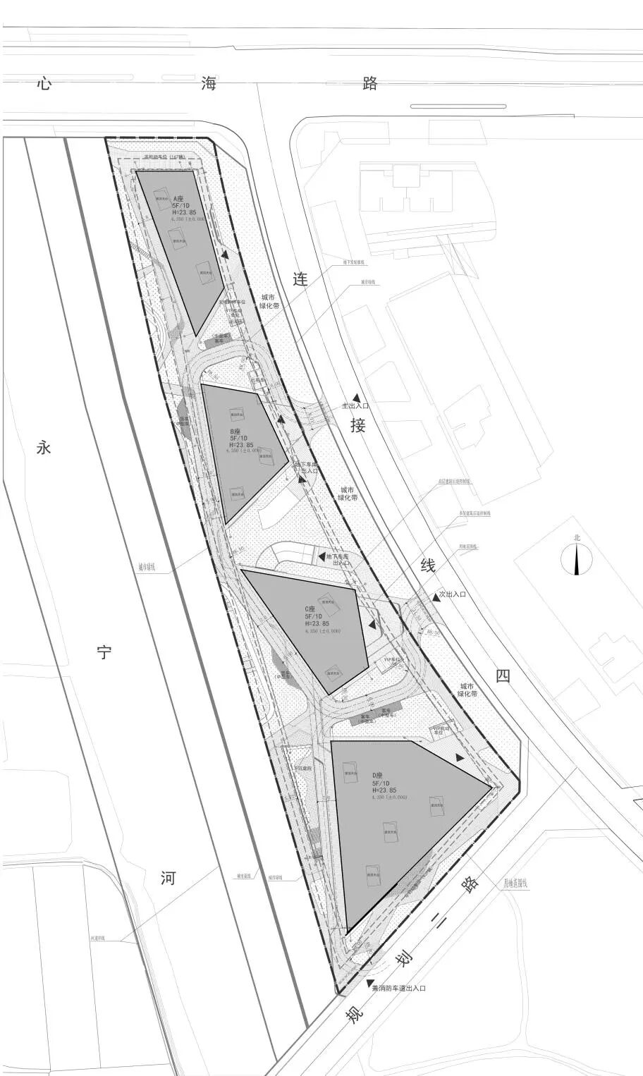
项目坐落于台州市商贸核心区,地上四栋建筑(A、B、C、D座)整合商业、办公与公共服务功能。设计提取台州“山海相依”的地域基因,将四栋多层建筑赋予“山体”形态隐喻。起伏连绵的屋面轮廓模拟峰峦叠嶂之势,与西侧永宁河风光带形成视觉通廊与景观延续;东侧现代商业体则以玻璃幕墙的冷峻质感形成材质对话。这种“软过渡”设计策略,使建筑成为自然景观向城市肌理渗透的媒介载体——“我们并非构建孤立建筑,而是编织山水与城市的对话语境”。





场地条件构成核心设计挑战:两侧退让红线导致可建宽度受限,单栋建筑体量被压缩,且周边高层建筑形成压迫感。如何在“夹缝”中突围并塑造独特场所气质,成为设计关键。设计采用“原石形体”的生成逻辑,将四栋建筑整合为连续整体:先依据场地控制线完成建筑雏形的规律排布,再通过体块的直向切削与斜向扭转,呼应周边建筑边界的线性关系,最终使建筑呈现溪畔原石的自然形态,消解狭长场地的局促感。





绿色建构理念贯穿设计全程,钢结构装配式体系搭建起高效轻盈的建筑骨架;竖向格栅外立面不仅塑造出富有韵律的线条肌理,更承担竖向外遮阳功能,有效降低建筑能耗,实现环保性能与美学表达的共生。建筑内部构建“线上流量导入—线下场景体验—线上内容输出”的闭环生态,以数字技术赋能空间。


总平面图
©gdd

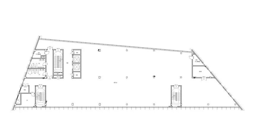
标准层一
©gdd

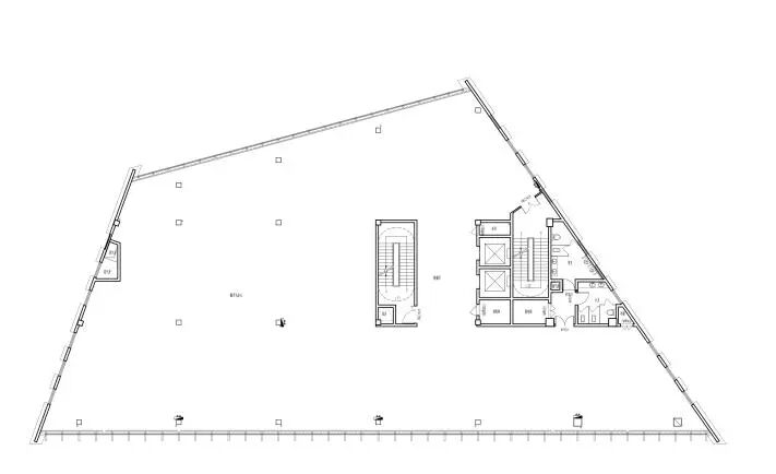
标准层二
©gdd

标准层三
©gdd

标准层四
©gdd
项目名称:中国(心海)网络直播基地
项目地址:浙江省台州市
用地面积:17535㎡
建筑面积:36648.01㎡
设计时间:2021年
设计团队:Z+max工作室
合作单位:中冶华天南京工程技术有限公司
